




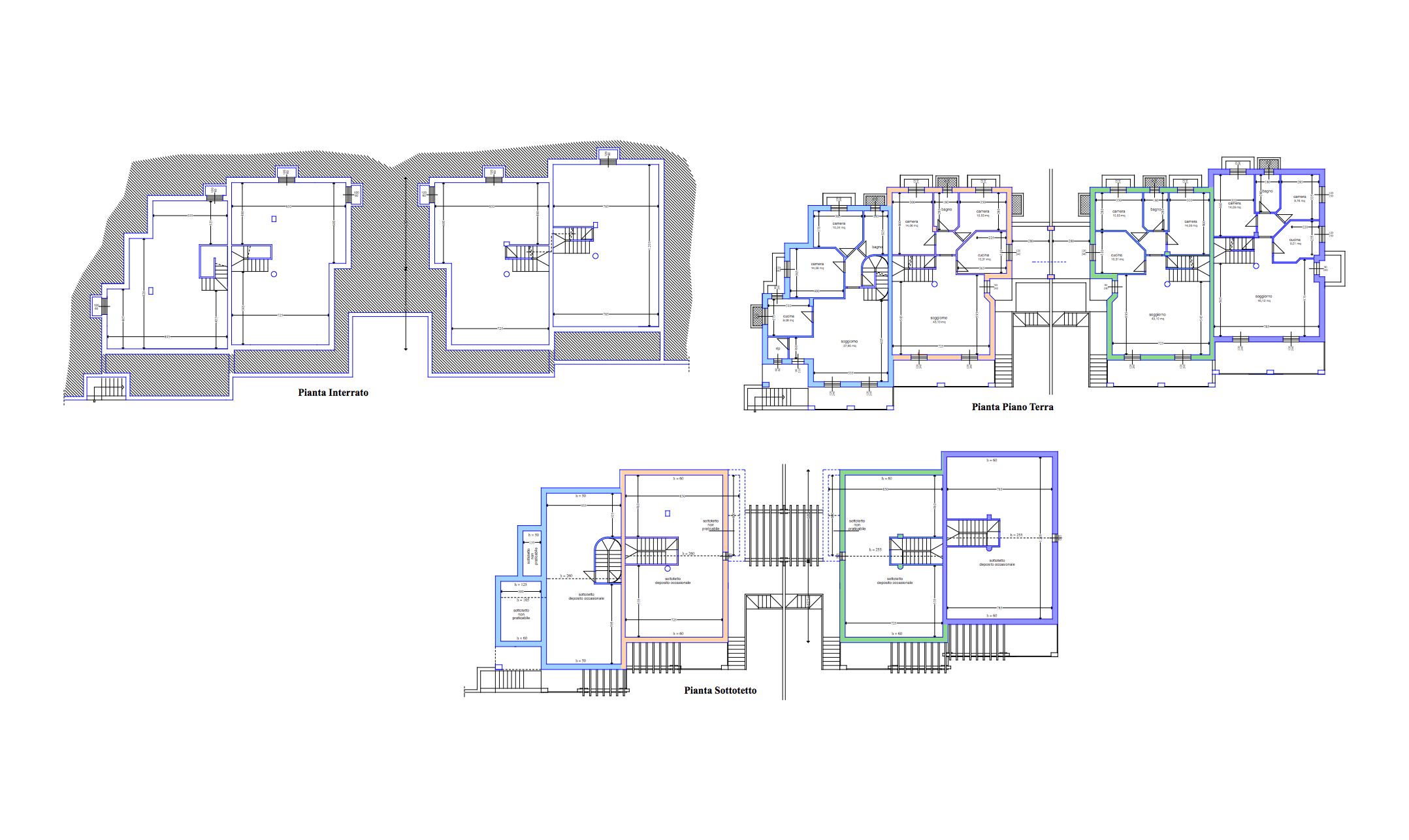
Due fabbricati bifamiliari ubicati in Comune di Ortonovo Via Isola Alta località Isola Alta, disposto su piano terra con accessori al piano seminterrato.
UNITA’ IMMOBILIARE n° 1 PIANO (porzione di bifamiliare)
Formato da :
– Ingresso, soggiorno, cucina, bagno, camera singola, camera matrimoniale al piano terra (circa 106 mq).
– Locali accessori al piano seminterrato collegato direttamente con l’interno (circa 96 mq) e dotato di scala esterna per accesso al giardino.
– Soffitta accessibile con scala interna e con altezza usufruibile per circa 40 mq
– lotto di proprietà di circa 600 mq.
– due posti auto esterni
UNITA’ IMMOBILIARE n° 2 PIANO (porzione di bifamiliare)
Formato da :
– Ingresso, soggiorno, cucina, bagno, camera singola, camera matrimoniale al piano terra (circa 108 mq).
– Locali accessori al piano seminterrato collegato direttamente con l’interno (circa 108 mq) e dotato di scala esterna per accesso al giardino.
– Soffitta accessibile con scala interna e con altezza usufruibile per circa 40 mq
– lotto di proprietà di circa 330 mq.
– due posti auto esterni
UNITA’ IMMOBILIARE n° 3 PIANO (porzione di bifamiliare)
Formato da :
– Ingresso, soggiorno, cucina, bagno, camera singola, camera matrimoniale al piano terra (circa 107 mq).
– Locali accessori al piano seminterrato collegato direttamente con l’interno (circa 108 mq) e dotato di scala esterna per accesso al giardino.
– Soffitta accessibile con scala interna e con altezza usufruibile per circa 40 mq
– lotto di proprietà di circa 330 mq.
– due posti auto esterni
UNITA’ IMMOBILIARE n° 4 PIANO T-SS1 (porzione di bifamiliare)
Formato da :
– Ingresso, soggiorno, cucina, bagno, camera singola, camera matrimoniale al piano terra (circa 107 mq).
– Locali accessori al piano seminterrato collegato direttamente con l’interno (circa 108 mq) e dotato di scala esterna per accesso al giardino.
– Soffitta accessibile con scala interna e con altezza usufruibile per circa 40 mq
– lotto di proprietà di circa 360 mq.
– due posti auto esterni